Farmers Cottage

Residential

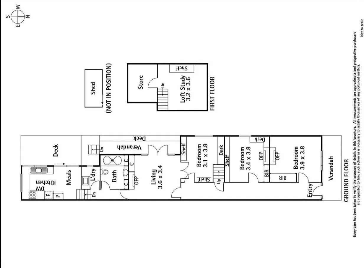
Farmers Cottage was a renovation project with full interior and exterior facade design. The floor plan was reimagined for modern day living by creating an open plan living and dining area that connected directly to the outdoors as well as relocating the bathroom and laundry for better flow and functionality and adding a powder room.

Interior Design: ILANA HARDY DESIGN

Builder: Supa Group Constructions

The Design Evolution

Explore the gallery